Земля

391
16.04.2026 13:47:17

Универсальное. продажа Универсальное. продажа | Купить недвижимость без посредников в Тольятти | Калинина, 11 | 557372

23

Комната

471 м²

Общая площадь

2 из 2

Этаж

Об объекте

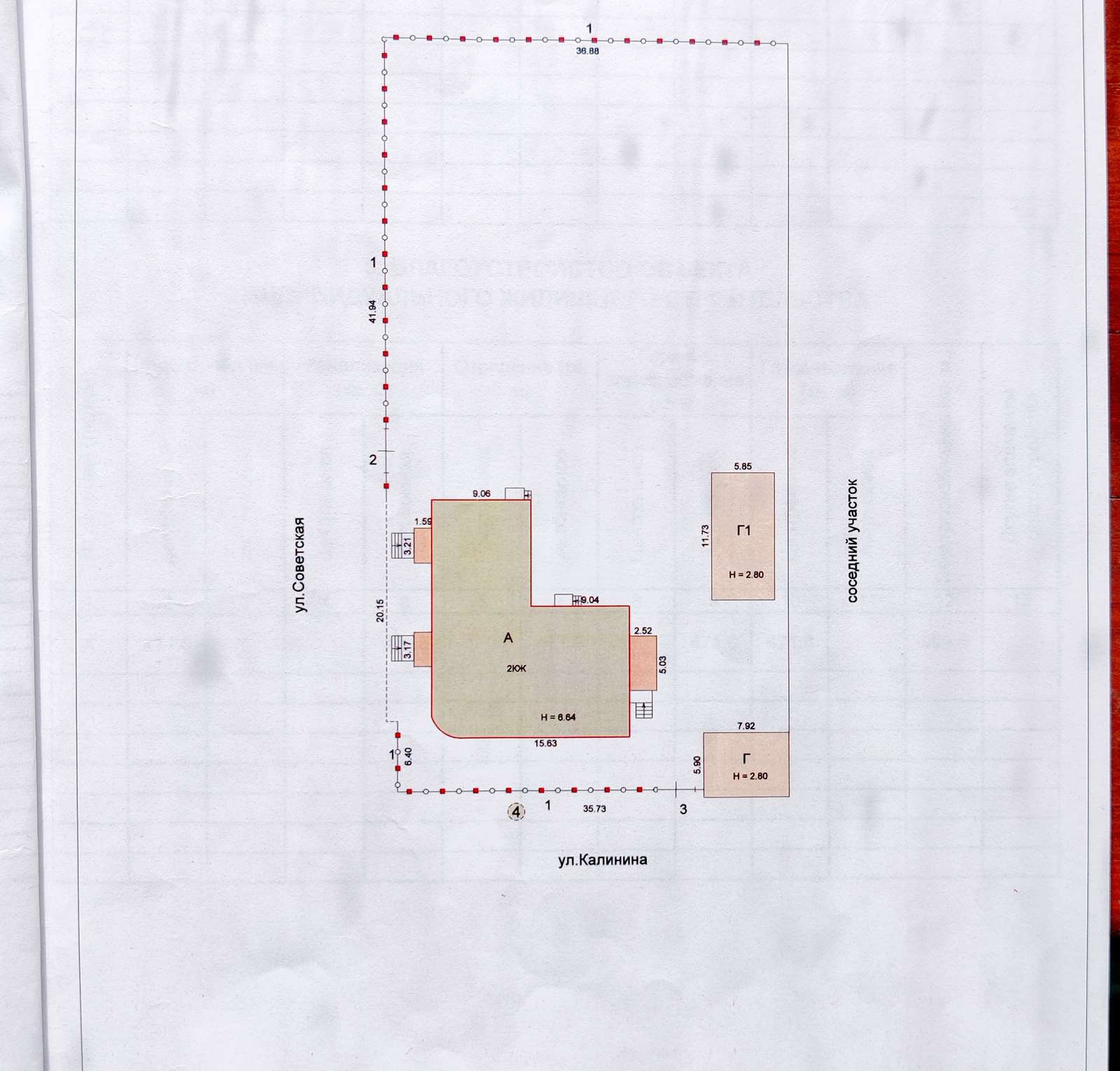
"Купеческий дом" в центре села. В народе называют "Дом быта". Идея такова, что часть дома по ул. Калинина площадью 283,9 кв.м. адаптирована под коммерческие помещения, которые сдаются в аренду.. А другая половина дома площадью 187,9 кв.м., по ул. Советской, построена для жилья. В ней сейчас ведутся отделочные работы. Также рядом с жилой половиной находится гараж на 3 автомобиля, и на участке есть хозблок-склад. Участок угловой, что очень удобно при таком комбинированном использовании.. Здание хорошо тем, что не имеет подвала. У него высокие потолки 2.9-3 м, широкие оконные проемы, два входа, санузлы на каждом этаже В коммерческой части - большое количество выводов под раковины, так как изначально планировалось создать медицинский центр. Между коммерческой и жилой частью находится металлическая дверь, установленная согласно пожарным нормам. Все коридоры широкие.Помещения 1го этажа сданы в аренду под услуги населению. В жилой половине: на 1 этаже - тамбур, гостиная, ванная комната, столовая, кухня с выходом на участок. а на 2 этаже - лоджия, 4 большие комнаты, в одной из них подведены сети для оборудования санузла. Котельная находится в подвале на кухне. Дом полностью подключен к наружным сетям, документы на собственность оформлены, подходит под ипотеку как жилье.

Подробные характеристики

Риэлтор в CRM Петинова Людмила
Тип продажа
Паркинг да
Качество хорошее
Этаж 2/2
Объект Не важно
Количество комнат 23
Общая площадь 471 м²
Имя риэлтора Петинова Людмила
Риэлторская организация Русская жемчужина
Эл. почта риэлтора real-luxe2011@mail.ru
Телефон риэлтора +79272684457
Город Верхние Белозерки село
Адрес Калинина, 11
Подкатегория коммерческая
Тип объекта Универсальная
Тип постройки Нет

Расположение объекта

г. Верхние Белозерки село Калинина, 11

Цена: 12000000 руб.

Комм. платежи включены

Проект ведёт

picture

Петинова Людмила

+79272684457

real-luxe2011@mail.ru

super clone rolex replica rolex watches rolex replica watch best replica rolex replica rolex for sale